top of page

Vivienda en Collserola
C. August Font. Sarrià-Sant Gervasi, Barcelona
Sup. Construida: 120m2
Fecha: 2018
Fotografía: Marcela Grassi
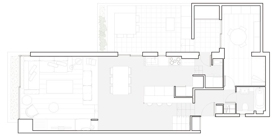
La principal mejora aplicada en la intervención es la apertura de la cocina hacia la zona de estar y comedor, un recurso que facilita una vida familiar más moderna, a la vez que permite disfrutar de las vistas de la ciudad desde la cocina, a la que nuestro cliente es muy aficionado.
La recuperación del revestimiento de madera de pino natural de la cubierta es el motivo para la elección de una combinación de acabados serenos, acordes al entorno natural de la casa.















planta primera

planta baja
bottom of page