top of page

Ampliación de una casa en Ibiza
Urbanización Siesta, Santa Eulària des Riu
Sup. Construida: 300m2
Fecha: 2014
Constructora: Bergomensis
El promotor de este proyecto pretende ampliar la casa y su parcela, para lo cual ha adquirido también la vecina, ubicadas en el límite de Siesta y con vistas privilegiadas hacia el norte.
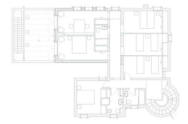
El nuevo volumen de ampliación, ajustándose a los gálibos permitidos por las ordenanzas, contendrá una amplia cocina con comedor, en planta baja, y dos dormitorios y una terraza en planta primera, adoptando también los rasgos característicos de la edificación original.




planta baja

sección

planta primera

vista del comedor
bottom of page